Eco Indigo - Dunbar
The United Kingdom blends history, culture, and scenic beauty into an unforgettable experience. Explore London’s iconic landmarks, Edinburgh’s royal charm, and Stonehenge’s ancient mystery. Wander through the picturesque countryside, historic castles, and vibrant cities like York and Oxford. Stay in cozy B&Bs, stylish hotels, or luxurious apartments. From Scotland’s Highlands to Wales’ coastal gems, the UK offers diverse adventures and timeless appeal for every traveler.
Eco Indigo
Dunbar Keepers Cottage and Kennels, by Spott Home Farm, Spott
No. of rooms
3
Parking
Animal acceptance
Rooms for singles
We speak
9.7/10
No. of rooms
3
Parking
Animal acceptance
Rooms for singles
We speak
9.7/10
Set 32 km from Muirfield, Eco Indigo offers accommodation with a patio, as well as a garden and a terrace.
The lodge offers a seating area with a flat-screen TV and a private bathroom with free toiletries, a hairdryer and shower. A fridge, a microwave and toaster are also offered in the kitchen, as well as a kettle.
Arthurs Seat is 47 km from Eco Indigo, while The Maltings Theatre & Cinema is 47 km from the property. Edinburgh Airport is 60 km away.
The hotel day starts from hour 16:00 and ends at 10:00.
Please inform in advance of your expected arrival time. You can use the Special Requests box when booking, or contact the property directly with the contact details provided in your confirmation.
This property will not accommodate hen, stag or similar parties.
You are advised to bring your own vehicle as this property is not serviced by public transport.
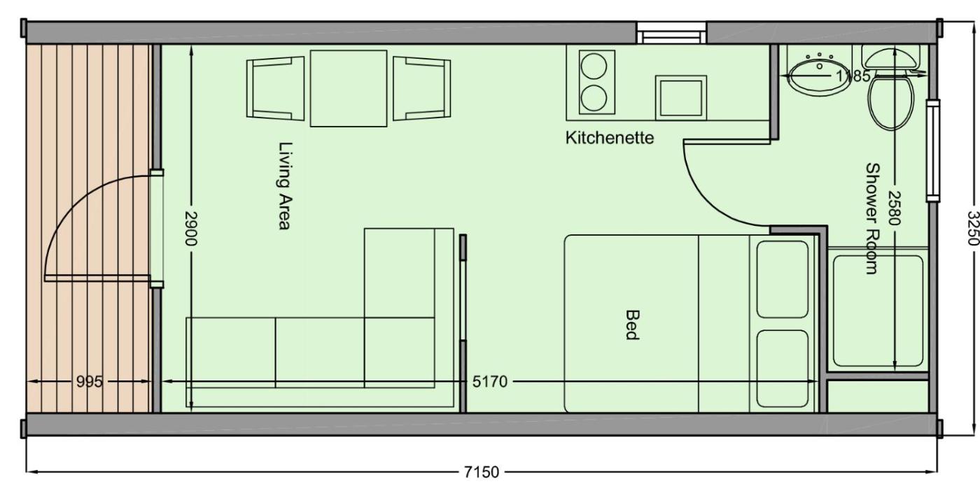
Deluxe Apartment. Featuring a private entrance, this chalet also consists of 1 bedroom, a seating area and 1 bathroom with a walk-in shower and a hairdryer. Guests will find a refrigerator, kitchenware, a microwave and a toaster in the well-equipped kitchenette. The chalet also offers a barbecue. The chalet provides a flat-screen TV, an electric kettle, a sofa, parquet floors as well as sea views. The unit offers 2 beds. ;
Superior Chalet. Boasting a private entrance, this chalet also includes 1 bedroom, a seating area and 1 bathroom with a walk-in shower and a hairdryer. In the fully equipped kitchenette, guests will find a refrigerator, kitchenware, a microwave and a toaster. The chalet offers a flat-screen TV, a dining area, an electric kettle, a barbecue as well as sea views. The unit has 1 bed. ;
Two-Bedroom Cottage. This holiday homes standout feature is the fireplace. Boasting a private entrance, this holiday home also includes 2 bedrooms, a seating area and 2 bathrooms with a walk-in shower and a hairdryer. Guests will find a stovetop, a refrigerator, a dishwasher and kitchenware in the kitchen. The holiday home also features a barbecue. This holiday home features a dining area, a flat-screen TV with streaming services a tea and coffee maker and a patio. The unit has 2 beds.
Non-smoking rooms
Guest accommodation is disinfected between stays
Picnic area
Fire extinguishers
Cashless payment available
Property is cleaned by professional cleaning companies
Parking on site
Non-smoking throughout
Guest accommodation sealed after cleaning
Parking
First aid kit available
Contactless check-in/check-out
Linens, towels and laundry washed in accordance with local authority guidelines
Staff follow all safety protocols as directed by local authorities
Pets allowed
Terrace
Luggage storage
Garden
BBQ facilities
Beach
Heating
Fitness
Free parking
Hand sanitizer in guest accommodation and key areas
