Lovely 2Bed Garden Flat In West London - London
The United Kingdom blends history, culture, and scenic beauty into an unforgettable experience. Explore London’s iconic landmarks, Edinburgh’s royal charm, and Stonehenge’s ancient mystery. Wander through the picturesque countryside, historic castles, and vibrant cities like York and Oxford. Stay in cozy B&Bs, stylish hotels, or luxurious apartments. From Scotland’s Highlands to Wales’ coastal gems, the UK offers diverse adventures and timeless appeal for every traveler.
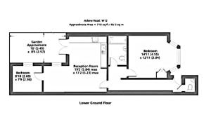
Lovely 2Bed Garden Flat In West London
London Askew Road
WiFi
Animal acceptance
We speak
WiFi
Animal acceptance
We speak
Set 3.3 km from Olympia Exhibition Centre, 4.1 km from Portobello Road Market and 4.2 km from Ealing Broadway, Lovely 2Bed Garden Flat In West London offers accommodation situated in London. The property is around 4.4 km from Park Royal, 5.5 km from Royal Albert Hall and 5.6 km from Natural History Museum. The property is non-smoking and is located 2.8 km from Eventim Apollo.
With free WiFi, this apartment provides a TV, a washing machine and a fully equipped kitchen with a dishwasher and oven.
Kew Gardens is 5.8 km from the apartment, while Stamford Bridge - Chelsea FC is 6 km away. London Heathrow Airport is 15 km from the property.
The hotel day starts from hour 15:00 and ends at 11:00.
This property will not accommodate hen, stag or similar parties.
Apartment. The spacious apartment provides a washing machine, a dining area, as well as a private bathroom featuring a bath and a hairdryer. Meals can be prepared in the kitchen, which comes with a refrigerator, a dishwasher, kitchenware and an oven. The apartment features a wardrobe, an electric kettle, tumble dryer, heating, as well as a flat-screen TV.
Heating
Free WiFi
First aid kit available
Non-smoking throughout
WiFi
Smoke alarms
Pets allowed
Internet services
